CENTRO GINECOLOGICO ALGINE
 
Propietarios

Los antiguos talleres de Refrenasa estuvieron situados en los locales comerciales del inmueble nº 8 de la Calle Cipriano Olaso, un vetusto edificio de austera composición, con una fachada de ventanas iguales y equidistantes rematada con unas concesiones al folklore regional.

Los promotores de este nuevo proyecto, una pareja de profesionales de la medicina, con la experiencia de una consulta anterior y con la capacidad de transmisión del programa –respetando la libertad formal -, plantearon con rigor temas tan diferentes como la doble circulación funcional, el modo de trabajo de las enfermeras o la situación de serenidad que se debía transmitir en los espacios.

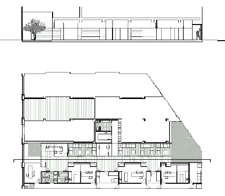
La nueva clínica ALGINE se distribuye según tres bandas funcionales paralelas entre ellas:

La formada por la zona de acceso de público, recepción y salas de espera y finalmente el patio interior del fondo.
La constituida por los despachos, consultas y espacios anexos.
Se podría entender, como una tercera banda, el pasillo de las circulaciones interiores entre despachos y consultas, desde la entrada hasta la zona de descanso.

La superposición formal de estas tres bandas y el trazado de sus límites, tanto en planta como en sección, se utilizan como argumento de la intervención.

Los materiales, vidrio, madera y aluminio en su color se combinan de diferentes modos y con distintas texturas.

Los alzados, parten de la rehabilitación de la estructura de pórticos de piedra del edificio que se reconstruirían con sillares y dinteles de piedra arenisca de Tafalla.

El cerramiento de los vanos, quiere recordar los antiguos usos de modo que delante de los alzados reales de vidrio, aluminio y madera unas puertas seccionables paneladas con vidrio -translucido mayoritariamente- protegen el local.

Srs. Aramburu Lecumberri
Situación 
c/ Cipriano Olaso 8, Pamplona
Fecha de proyecto
marzo 2001
Fecha de ejecución
octubre 2001
 
 
 
 
 
 
 
 
 
 
 

 

VOLVER